Endless Opportunities

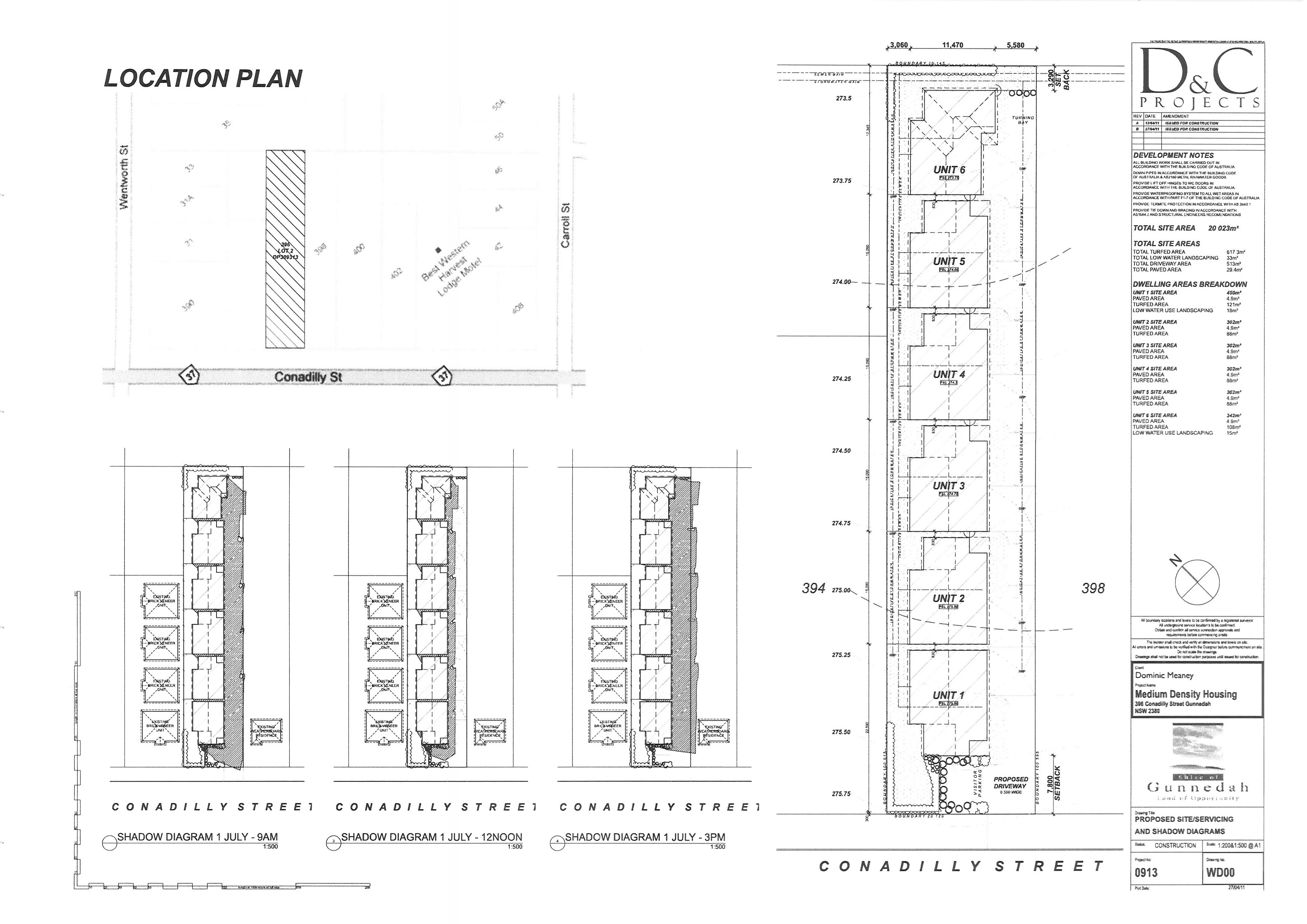
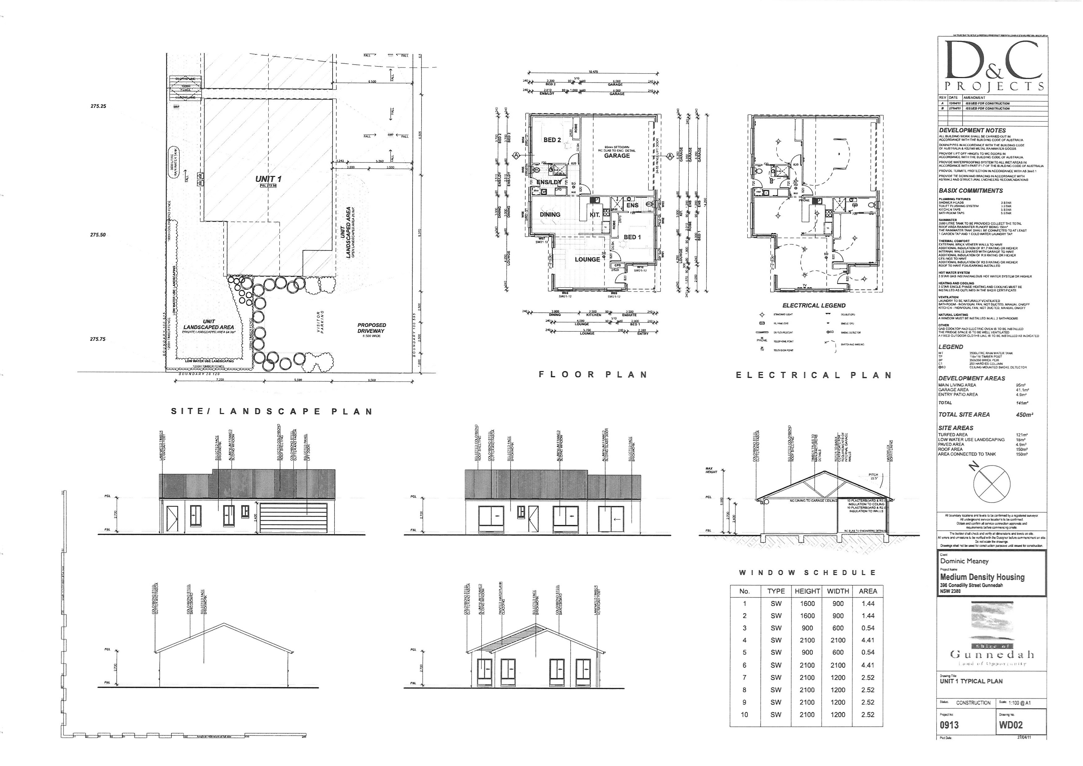
If you are looking for a great investment, we have just what you need with this approximately 2025 square meter block. The opportunities are endless with what you can do with this land. We have also added into the photos a possible plan that may interest you in what you would like to do. With a little bit of TLC and an idea this could really make a fantastic investment. This is certainly one you will not regret. Give us a call now for any questions or interests on 6742 6677, or call John directly on 0408 607 880.

DISCLAIMER: Whilst all care is taken with the information supplied no warranty is given and you must rely on your own enquiries.

Address 396 Conadilly St
Price $300,000
Property Type residential
Property ID 512
Category Vacant Land
Land Area 2,025 m2

Quick Links

Agent Details

John Harford photo

John Harford

0408 607 880
View Profile
Megan Riley photo

Megan Riley

0499 607 880
View Profile